| 物件番号 | HO0173-01 |
|---|---|
| 物件名 | 新庄西10-A:倉庫事務所 |
| 階・号室 | 1~2階/建物全部 |
| 種別 | 倉庫<2階建倉庫兼事務所> |
| 所在地 | 東大阪市新庄西 |
| 交通 | 大阪メトロ中央線 「
長田 」駅 徒歩
20分 JR片町線 「 鴻池新田 」駅 徒歩 19分 |
| 用途地域 | 商業地域 |
| 竣工年月 | 平成 4 年( 1992 ) 1 月 |
| 構造 | 鉄骨造 ALC版貼 地上 2 階 建 |
| 接道 | 東側公道:8ⅿ |
| 使用面積 | 684.30 ㎡ (207.0坪 ) |
| 賃料 | ¥1,485,000 @7,174 |
| 共益費 | 無 |
| 月額合計 | ¥1,485,000 |
| 土地面積 | 728.17㎡(220.27坪) |
| 保証金 | 6.0ヶ月 |
| 解約引 | 2.0ヶ月 |
| 駐車場 | 有 前面空地・込み |
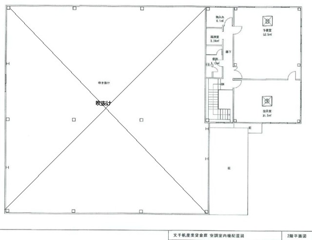
| 設備 | ・大型車進入可能 ★平屋倉庫棟:446.70㎡(135.12坪)倉庫/作業場/車庫など 事務所棟:1階~2階延べ237.60㎡(71.87坪) 延べ:684.30㎡(207.00坪) ★Ⓟ前面空地:数台可 ★電動シャッター:H4,400×W4,900 ★事務所棟:残置物エアコンあり |
| 備考 | ★現在空物件⇒引き渡し時期相談(12月~可) ★内覧手配致します ■借家人賠償付火災保険加入 ■仲介手数料=賃料1ヶ月分+消費税 |
| 取引態様 | 媒介 |
新庄西10-A:倉庫事務所
【中央環状線】すぐの立地・大型車輌出入り可・平屋倉庫135坪+2階建事務所棟・Ⓟあります!
アクセスマップ
お問合せ












