| 物件番号 | HS0045-01 |
|---|---|
| 物件名 | 杭全6-B:貸倉庫/事務所 |
| 階・号室 | 1~2階/B室 |
| 種別 | 倉庫<2階建倉庫兼事務所> |
| 所在地 | 大阪市東住吉区杭全 6丁目 |
| 交通 | JR関西本線 「 東部市場前 」駅 徒歩 3分 |
| 用途地域 | 準工業地域 |
| 竣工年月 | 平成 21 年( 2009 ) 1 月 |
| 構造 | 鉄骨造 ALC版貼 地上 2 階 建 |
| 接道 | 南西側公道:R25奈良街道 |
| 使用面積 | 305.98 ㎡ (92.56坪 ) |
| 賃料 | ¥1,276,000 @13,786 |
| 共益費 | 無 |
| 月額合計 | ¥1,276,000 |
| 土地面積 | 537.62㎡(162.63坪) |
| 保証金 | ¥11,600,000 |
| 解約引 | ¥3,828,000 |
| 駐車場 | 有 前面空地・込み |
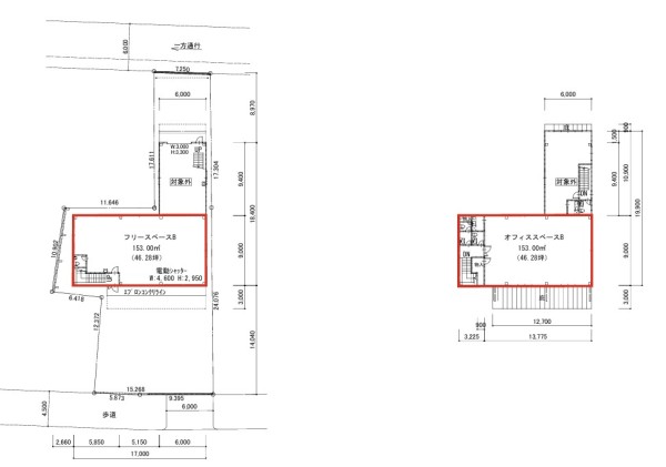
| 設備 | ★1階:153.00㎡(46.28坪)倉庫/作業場 2階:153.00㎡(46.28坪)事務所 延べ:306.00㎡(92.56坪) ★Ⓟ前面空地:数台可 ★ウオシュレWC2箇所、流し台、照明 ★電動シャッターH2,950×W4,000 ★2F:エアコン ★フォークリフト充電用電源 ★天高:1階3,800 ■入居に伴う借主様負担の改装・改造工事は貸主指定業者施工が条件となります |
| 備考 | ★現在賃貸中⇒2026年7月上旬以降で引き渡し時期相談 ★内覧手配致します ■借家人賠償付火災保険加入:指定損保無し ■仲介手数料=賃料1ヵ月分+消費税 |
| 取引態様 | 媒介 |
杭全6-B:貸倉庫/事務所
【R25・奈良街道】に面す・2階建倉庫/事務所~各階46坪~延べ92坪・Ⓟ前面スペースあり!
アクセスマップ
お問合せ












