| 物件番号 | S0646-02 |
|---|---|
| 物件名 | 南吹田5-H2:貸倉庫/事務所 |
| 階・号室 | 1~3階/建物全部 |
| 種別 | 一棟貸ビル<多層階倉庫兼事務所> |
| 所在地 | 吹田市南吹田 5丁目 |
| 交通 | JRおおさか東線 「
南吹田 」駅 徒歩
15分 大阪メトロ御堂筋線 「 江坂 」駅 徒歩 18分 |
| 用途地域 | 第一種住居地域 |
| 竣工年月 | 平成 2 年( 1990 ) 11 月 |
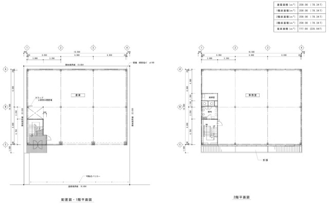
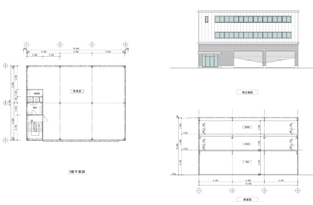
| 構造 | 鉄骨造 ALC版貼 地上 3 階 建 |
| 接道 | 南側公道:8.5ⅿ |
| 使用面積 | 776.99 ㎡ (235.04坪 ) |
| 賃料 | ¥1,650,000 @7,020 |
| 共益費 | 無 |
| 月額合計 | ¥1,650,000 |
| 土地面積 | 431.77㎡(130.61坪) |
| 敷 金 | ¥6,000,000 |
| 礼 金 | ¥3,300,000 |
| 駐車場 | 有 前面空地・込み |
| 設備 | ・大型車進入可能 ★1階:259.00㎡(78.34坪)倉庫/作業場など 2階:259.00㎡(78.34坪)事務所仕様 3階:259.00㎡(78.34坪)事務所仕様 延べ:777.00㎡(235.04坪) ★Ⓟ前面空地:数台可能 ■実費負担=電気、水道、警備費・ゴミ処理費など |
| 備考 | ★現在空物件⇒引き渡し時期ご相談 ★内覧手配致します! ■賃貸保証契約基本要:企業様の規模内容にて免除相談 ■借家人賠償付火災保険加入(指定損保会社なし) ■仲介手数料=賃料1ヶ月分+消費税 |
| 取引態様 | 媒介 |
南吹田5-H2:貸倉庫/事務所
【内環状線】すぐの立地・3階建倉庫/事務所・各階78坪~延べ235坪・余裕のⓅ前面スペース!
アクセスマップ
お問合せ

















